Các công ty xây dựng khác nhau có đơn giá khác nhau. Khi chọn đơn vị thi công, chủ đầu tư cần cân nhắc yêu cầu càng chi tiết càng tốt về vật tư, tiến độ, chất lượng…Tránh những công ty đưa giá quá thấp. Để giữ mức lợi nhuận mong muốn, nhà thầu giảm chất lượng vật tư, giảm chất lượng thi công lắp đặt. Tuy tiết kiệm chi phí lúc đầu nhưng về lâu dài sẽ tăng chi phí bảo trì rất nhiều, thậm chí hư hỏng sau bảo hành không sử dụng được
Tại công ty Keizi, chúng tôi cam kết mang đến khách hàng
- Báo giá rõ ràng, minh bạch và đầy đủ
- Lựa chọn vật liệu tốt nhất theo yêu cầu của chủ đầu tư, tiết kiệm những chi phí không cần thiết
- Đảm bảo tiến độ thi công giúp doanh nghiệp lên kế hoạch nhập hàng, lắp dây chuyền máy móc & lập kế hoạch kinh doanh
- Bảo hành và bảo trì theo hợp đồng. Xử lý các sự cố không quá 48h kể từ khi khách hàng yêu cầu
- Đội ngũ kỹ thuật dày kinh nghiệm đảm bảo công trình đạt chất lượng cao nhất
Trở lại dự toán ở phần 1, đơn giá thi công nhà xưởng chính ấn định ở mức 3.650.000 Đồng/m2. Đơn giá trên ở mức cao do các yêu cầu cao từ chủ đầu tư. Tại Keizi, mức chi phí đầu tư xưởng có thể từ mức 1.200.000 Đồng/m2. Do vậy đơn giá trên chỉ ở mức tham khảo, chi tiết hơn quý khách vui lòng liên hệ để có báo giá chính xác nhất
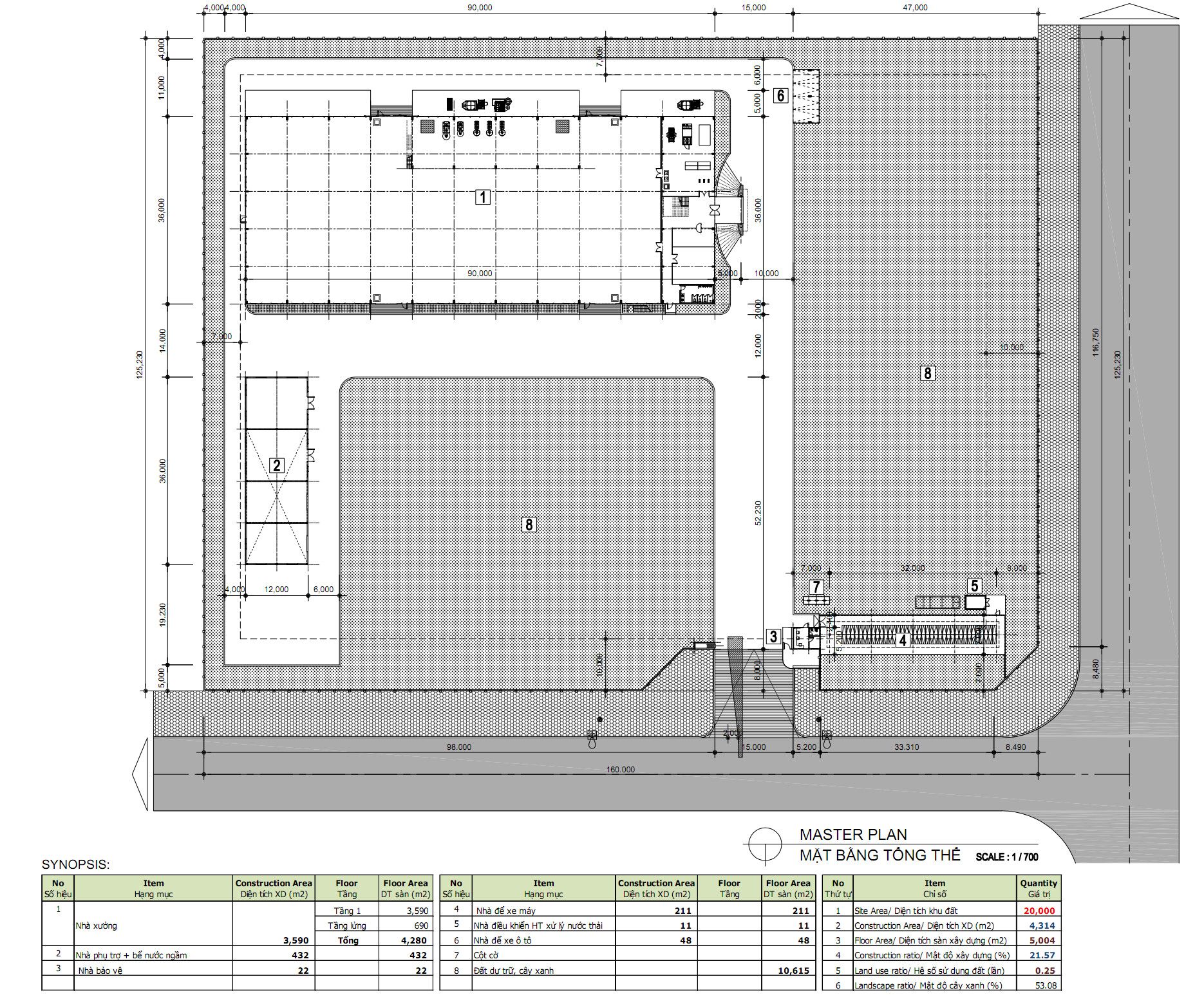
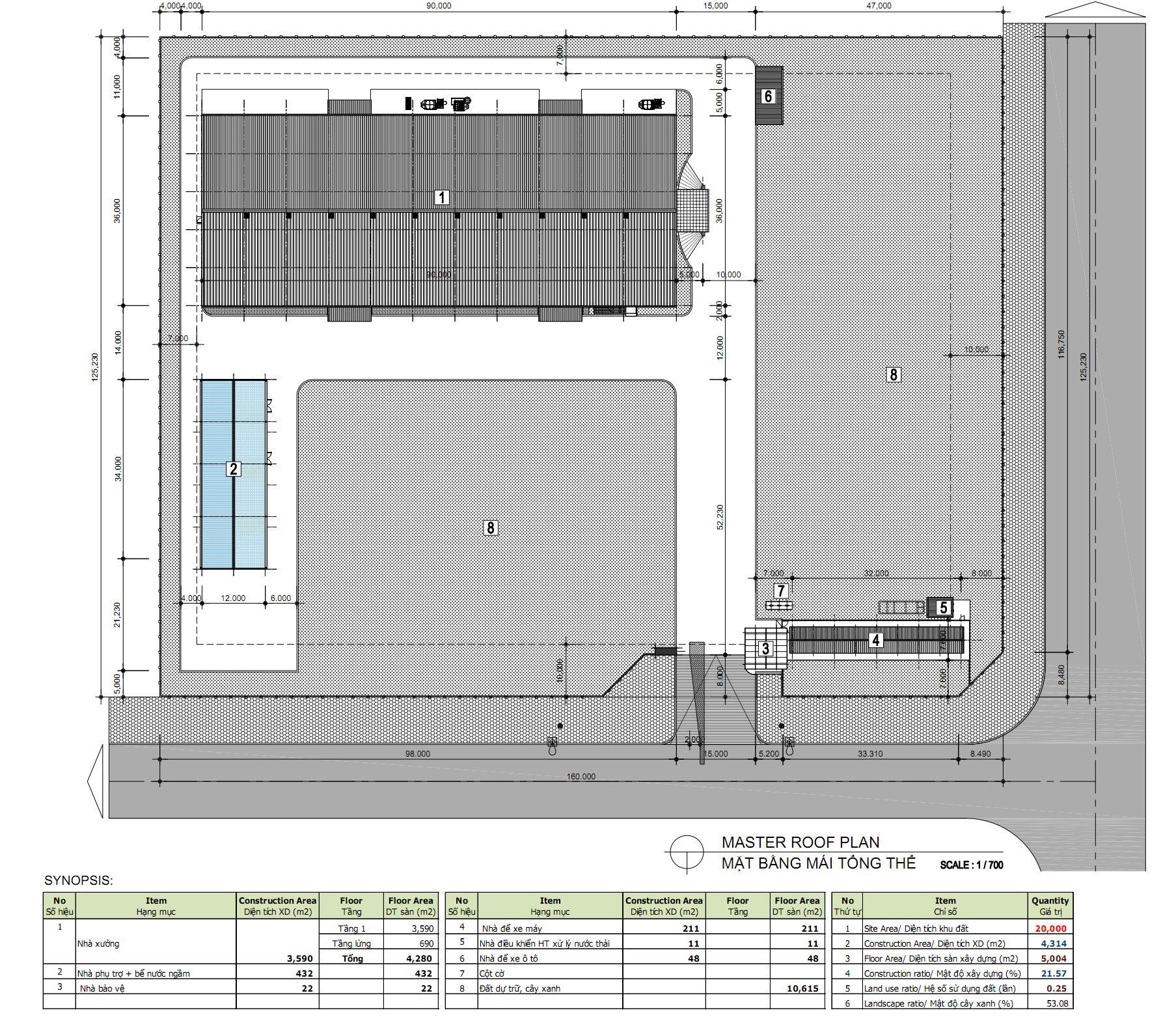
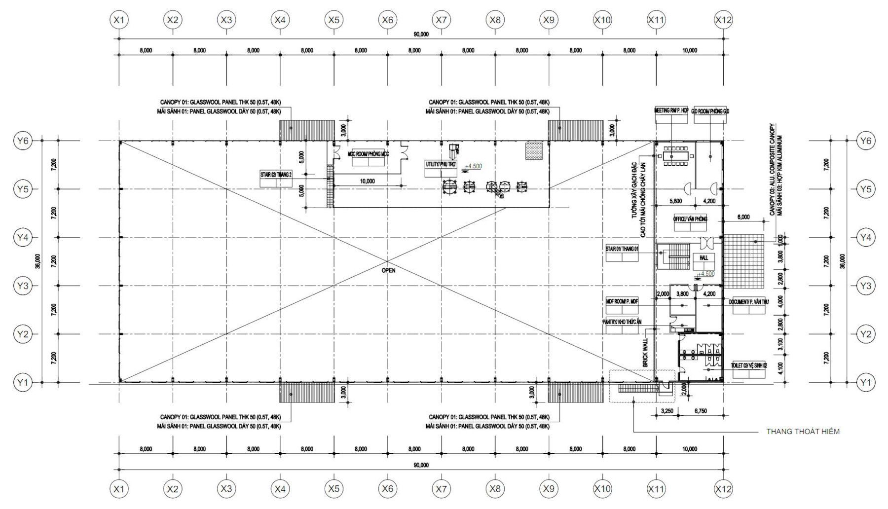
Sau đây là hình ảnh thi công nhà xưởng theo bản dự toán phần trước
Thi công nhà xưởng với Keizi
Keizi – công ty 100% vốn VN – chuyên thi công nhà xưởng nhà công nghiệp. Đội ngũ chuyên gia tinh nhuệ & dày dạn kinh nghiệm của chúng tôi đã từng tham gia thi công nhiều dự án nhà máy và văn phòng lớn đầu tư từ Hàn Quốc, Việt Nam và nhiều quốc gia khác. Hãy gọi cho chúng tôi khi quý công ty cần thiết kế, báo giá thi công công trình. Chúng tôi miễn phí thiết kế khi chọn chúng tôi thi công công trình của bạn
Văn phòng: Số 6, Đường số 6, KDC 13C Greenlife, Phong Phú, Bình Chánh, Tp HCM
Liên hệ: 0877343602 – Mr. Sự
Phone: (+84) 028 6272 2868
Chat Zalo: 0877343602
Email: [email protected]
DOWNLOAD HỒ SƠ NĂNG LỰC CÔNG TY






















































